福州便民家居第101期免费户型解析会 
          便民网家居频道在线户型解析会是为还未装修的业主举办的公益活动,
       每期我们将邀请不同装修公司或者工作室的设计师QQ在线免费解析您家的
       户型,为准备装修的您答疑解惑。届时我们将在本帖回复楼层及(业主Q群
       业主群号:37903751)进行文字直播!还等什么呢?赶紧报名参加吧!
  姓名:廖天豪
  手机:15980650084
  从业经验:8年
  公司职务: 设计总监
座 右 铭:欣赏美是一种享受,艺术追求唯美,让艺术为生活服务是我的工作,让更多的人生活独特是我的追求。家是生活的另一种语言表达,是品位与地位的另一张名片····
擅长风格:简约、现代、中式、欧式、地中海风格等 查看作品>>
公司简介

   福建如家装饰设计工程有限公司是一家以设计、施工、售后维护于一体的专业装饰工程公司。并取得由建设厅颁发的装饰装修设计与施工一体化二级资质企业。可承接单项合同额达1200万室内外装修工程。凭借精湛的技术和实力,丰富的设计经验、雄厚的资金进军福州装饰行业,并多次荣获“福州十大装饰装修企业”、“福建省客户满意服务装饰装修单位”、“福建省绿色装饰装修推荐企业”、“全国住宅装饰装修行业自律管理企业”等行业荣誉,2009年、2010年连续获得“福建省室内与环境设计大奖赛二等奖”等众多设计大奖。现设有一个总部(福州中央商业区五四路上),和省内多家分公司及遍布城区多个售后服务网点。 [查看详细]
 
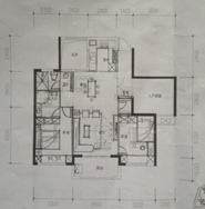
 第一户:
 第二户:  第三户:

面积140.38平,实际使用面积123平左右。
1.户型是夹中间的所以阳光不是特别充足,将阳台包进来使用,以后宝宝的衣服怎么晒
2.主卧的面积其实不大,储物的空间如衣柜。
3.书房面积也很小能不能做个多功能榻榻米。
4.客厅方向阳台比较大,考虑做洗衣池。
5,房子南北通透,四面采光,各个房间都有窗户
6,厨房很小,锅碗瓢盆不够放,怎样空间最大化
7.飘窗可敲掉做落地窗,如何设计光线视野更好

建筑面积:126平(3.5室2厅一厨三卫两阳台)
套内面积:115平户型
一家五口住的,夫妻+1小孩+2老
1:组成 1主卧+2次卧+1书房+1客厅+1餐厅+1厨房+2卫生间+1储藏间+2阳台
2:需考虑次卫生间的老人无障碍设施
3:需要多考虑储藏空间
4:老人房尽量考虑布置南北床,活动空间留大些
5:儿童房需考虑小孩长大后的空间

建筑面积:96平
户型:2室2厅一厨一卫一阳台
一家三口住的,夫妻都是老师
1、增加一个卫生间
2、增加一个1平米左右的储藏间
3、厨房要如何设计,如何布局
4、卧室想有个飘窗

 设计师方案:  设计师方案:  设计师方案:
 
   不是很满意,可能太忙没有太多自己的想法,设计师能想到的我们早就想到了 没有新意,打分6分。

业主满意度:★★★
   基本满意,其余还有待沟通,打9分,其余主要是时间太短,以后可以多组织些这样的活动。

业主满意度:★★★★
  设计师的态度很谦和,非常满意。设计师能够根据我提出的问题进行及时的修改,打9分。

业主满意度:★★★★




       作者: [廖天豪]         作者: [廖天豪]         作者: [廖天豪]         作者: [廖天豪]





        作者: [廖天豪]         作者: [廖天豪]         作者: [廖天豪]         作者: [廖天豪]