迪亚设计是由几位资深室内设计师组成的专业从事于家居装饰、写字楼、公寓、挑高空间、商业空间、娱乐空间、别墅设计的设计团队!迪亚人对内提倡尊重、信任、专业、崇尚团队精神,对外强调诚实、信用、坚持质量第一。力求在每一项设计作品以及每一项设计作品的每一个环节,通过自身优势营造出完美的设计作品以回馈客户。一直以来,我们通过对各种性质的建筑空间进行设计和施工,使我们积累了丰富的管理、设计和施工经验,公司本着以绿色环保为主题,对家居住宅、办公、商铺等不同特点的室内装饰产品形成了独特的装饰理念...[查看详细

户型设计师

姓名:宋晨阳

单位:迪亚设计
所学专业:建筑工程
职称:高级室内设计师 高级住宅室内设计师 迪亚室内设计+咨询负责人

专长:擅长餐饮、娱乐、酒店和精品住宅空间设计
 查看作品>>

                                                                                                 更多>>

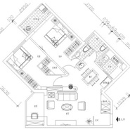
专家点评:


优点:

格局清晰 功能性上都能满足。
缺点:

卫生间位置比较局促 ,格局稍加变动可以改善。

专家点评:


优点:

户型良好,只要根据业主个人需要功能上稍加变动,就能构建一个良好的居住空间。
缺点:

不足的是改造后

儿童房相对局促 有得有失

专家点评:


优点:

原本户型就比较清晰。
缺点:

业主要求改为2房半 细节处理上要多用心 才能达到业主想要的效果

  • 作品1

    作者: [迪亚装饰设计]

  • 作品2

    作者: [迪亚装饰设计]

  • 作品3

    作者: [迪亚装饰设计]

  • 作品4

    作者: [迪亚装饰设计]

  • 作品5

    作者: [迪亚装饰设计]

  • 作品6

    作者: [迪亚装饰设计]

  • 作品7

    作者:[迪亚装饰设计]

  • 作品8

    作者:[迪亚装饰设计]