正大易禾装饰设计工程有限公司全程提供免费测量(风水)、设计、预算。专业装修20年,在广州、佛山、东莞等地专业装修已经有20年经验,值得信赖。专业家装五大保障体系 将材料一包到底,无需考虑材料补货退货。 在施工地出现不合格项目坚决拆除返工,正大易禾公司全权负责。 施工过程如果发现使用伪劣材料给予正品双倍赔偿。 环保监测超标正大易禾装饰全权负责。 2+5保修,终身爱心维护。[查看详细

户型设计师

姓名:邹长峋

职位:正大易禾装饰首席设计
毕业院校:福州工程学院

设计理念:推崇时尚简约,自然融入人文的风格,全面展现客户的个性。 查看作品>>

                                                                                                 更多>>

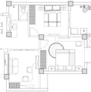
第一户:


1、共三个阳台,入户花园和客厅阳台朝西,卧室阳台朝南,希望阳台是亲近大自然的效果。
2、主卧只有14平米左右,朝西的窗户与主卫窗户只相差50cm,如果砌了墙体就不能做衣柜了,主卧衣柜放哪儿好呢?
3、厨房实用面积非常小,长2.3m,宽1.85m(含烟囱管道0.6m)。希望灶台侧对窗户,洗菜盆能面对窗,操作空间较难安排。


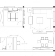
第二户:


1、我家人口情况:两个大人,两个小孩。
2、面积为107平(阳台算全面积),厨房、卫生间的方位如图,房子的缺陷是房子中间有两个柱子。
3、房子设计空间需求:厨房、客厅、餐厅、三个卧室、一个卫生间即可,空间的划分、储藏功能和摆放方位能考虑到风水禁忌,让设计师费心了!
4、设计风格需求:现代简约、实用。期待大师的杰作!


 

第三户:


1、这是我家的户型图,准备入住的人是三口之家+老人。
2、面积是:产权94,实际85左右
3、厨房还能再扩大些吗?
4、餐厅的窗正对着门,要不要遮挡下呢?
5、卧房书房都在南面,比较集中,担心光线和通风;
6、书房里希望有那种大大的书桌,方便我和孩子同时使用。


  • 作品1

    作者: [正大易禾装饰]

  • 作品2

    作者: [正大易禾装饰]

  • 作品3

    作者: [正大易禾装饰]

  • 作品4

    作者: [正大易禾装饰]

  • 作品5

    作者: [正大易禾装饰]

  • 作品6

    作者: [正大易禾装饰]

  • 作品7

    作者:[正大易禾装饰]

  • 作品8

    作者:[正大易禾装饰]