Shinezone翔筑设计是一家集室内、建筑、园林景观设计与施工为一体的专业服务工作室。工作室拥有丰富的人力资源和经验丰富的设计团队,设计团队以福州大学优秀毕业生为主,始宗坚持以“实践、教育和科研”为特色,走品牌经营之路。近年来翔筑设计发展迅速,培养了大量高素质的设计人才,其作品也多次获奖。为了更好扩展业务,工作室协同福建同方建筑装饰工程有限公司(二级)、北京世纪豪森建筑有限公司(甲级)、福州大学建筑学院共同打造高品质的服务平台。[查看详细

户型设计师

姓名:柯达峰

职务:福州大学建筑学院讲师,建筑学学士,结构工程硕士

设计理念:以传播建筑文化为己任,精益求精!
设计风格: 中式 欧式 田园 现代 简约 地中海
查看作品>>

                                                                                                 更多>>

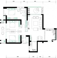
第一户:


这是我家的户型图,准备入住的人是三口之家产权面积93,实际面积80
1、想把客厅的阳台包进来,在阳台的位置做个有一定高度的榻榻米,打算榻榻米底下可以储物,书房也想做成榻榻米,和客厅阳台一样用途,不知道这两个榻榻米做什么高度合适。
2、如果有可能的话,尽量做两个卫生间。
3、尽量有多的储物空间。
4、两个卧室之间的那堵墙打算做成壁橱,不知道合不合适。



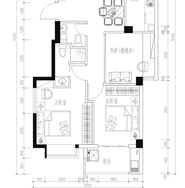
第二户:


产权面积97平,实际面积不清楚,估计80多点。入住是两个人,将来一个小孩,可能偶尔会有一个老人住一段时间。
1、老家经常来人,所以还是要有两房半或三房,除主卧外,另两个房不需要太大,尽可能多的储物空间。
2、很多朋友建议,最好是有两个卫生间;
3、客厅还是要有阳台的(不考虑将客厅移到其他地方);厨房不要开放式的;书房最好明亮通透一点。
4、设计风格需求:现代简约、实用。


 

第三户:


1、喜欢的设计风格:法式田园、中式。首选普罗旺斯。
2、共三个阳台,入户花园和客厅阳台朝西,卧室阳台朝南,希望阳台是亲近大自然的效果。
3、主卧衣柜放哪儿较好呢?另外,主卫右前方墙角处有两根水管,浴缸无法直接靠墙放置。
4、希望灶台侧对窗户,洗菜盆能面对窗,操作空间较难安排。双开门冰箱可以放在厨房外。
5、家里有时朋友小聚,餐厅的空间希望宽敞些。



  • 作品1

    作者: [翔筑设计]

  • 作品2

    作者: [翔筑设计]

  • 作品3

    作者: [翔筑设计]

  • 作品4

    作者: [翔筑设计]

  • 作品5

    作者: [翔筑设计]

  • 作品6

    作者: [翔筑设计]

  • 作品7

    作者:[翔筑设计]

  • 作品8

    作者:[翔筑设计]