名匠装饰创始于1992年,是中国最早进入家庭装饰行业的著名装饰品牌之一,现已发展成为以家装为主,涉足公装、建材、家具、物流、教育等相关产业的全国知名品牌企业。  名匠装饰是国家建筑装饰装修设计乙级、施工二级资质企业,为IFDA国际室内装饰设计协会会员、中国建筑装饰协会会员、中国室内设计协会会员、多个省市建筑装饰协会会员。目前已在全国开设了五十余家直营分公司,是全国大型连锁装饰集团公司、中国装饰装修行业领军企业、广东省装饰业三强之一。[查看详细]

户型设计师

真实姓名: 刘征泉
从业时间: 5年

固定电话:15659767898
设计价格: 150元/㎡-200元/㎡
座右铭: 设置全局、计算无遗

设计风格:设计源于生活,改变生活
设计擅长: 别墅,公寓套房,复式,商场专卖,品牌专卖店,酒店咖啡厅
查看作品>>

                                                                                                 更多>>

设计理念:


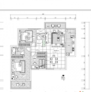
房产证面积131平方米。主题要简约+实用,刚买房子经济不是很宽裕。
?? 要求:

1.有一个多功能房【读书+上网+客人留宿】


2.我们一家3口,偶尔妈妈会过来帮忙带小孩,儿子7岁。


3.以经济实用为主,现在还没能力考虑奢华。

设计理念:

 

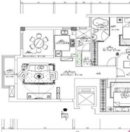
装修要求:大气不奢侈,华丽耐看,实用方便。问题:
1.因为餐厅连着背景墙,背景墙较小,人需从背景墙旁进入厨房和餐厅,背景墙如何设计?餐桌用圆的还是长方形的?
2.入户正对的玄关如何设计?
3.主卧和次卧都有一个阳台,中间的小房间相对较小,小孩房安排在哪间,如何设计?
4.很想在主卧里设一个浴缸,卫生间最容易滋生小虫子,最好要那种没有死角的。
基本问题就这些了。

设计理念:

 

先介绍一下户型,是朝南方向的,产权83平方,公摊20%,实际室内使用面积可能只有67平方左右。
1、现在把设计要求简单说一下,要做成3小房,2个小阳台不能改变,要景观的。2、客厅也不能去改变它,不然房子基本没有光线了。

3、主要是便于以后老人过来一起生活,简约风格就行!



  • 作品1

    作者: [名匠装饰]

  • 作品2

    作者: [名匠装饰]

  • 作品3

    作者: [名匠装饰]

  • 作品4

    作者: [名匠装饰]

  • 作品5

    作者: [名匠装饰]

  • 作品6

    作者: [名匠装饰]

  • 作品7

    作者:[名匠装饰]

  • 作品8

    作者:[名匠装饰]