名匠装饰创始于1992年,是中国最早进入家庭装饰行业的著名装饰品牌之一,现已发展成为以家装为主,涉足公装、建材、家具、物流、教育等相关产业的全国知名品牌企业。名匠装饰是国家建筑装饰装修设计乙级、施工二级资质企业,为IFDA国际室内装饰设计协会会员、中国建筑装饰协会会员、中国室内设计协会会员、多个省市建筑装饰协会会员。目前已在全国开设了一百余家直营分公司,是中国至大家装连锁企业、中国装饰装修行业领军企业。[查看详细]

户型设计师

真实姓名: 宁啟权
从业时间: 2006年07月至今

手机电话: 136 25047232
设计价格: 80元/平方起

座右铭: 追求卓越 敢于创新 引领时尚艺术潮流

设计风格: 简欧风格、田园风格
设计擅长: 别墅、复式、住宅公寓
查看作品>>

                                                                                                 更多>>

设计理念:


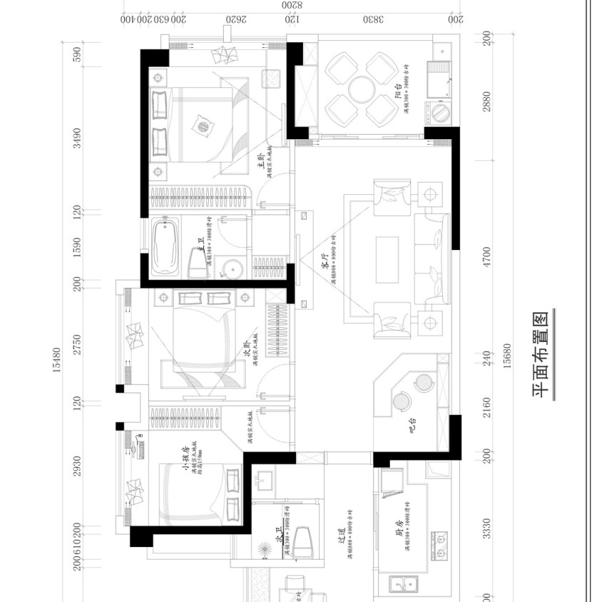
1、产权面积145,实际面积120
2、居住人口:新婚夫妻、老人、2个孩子
3、厨房可向北面白色部分推移
4、朝北房间做书房功能,西面房间,怎么设计双人儿童房?
5、咨询下,能否做出一间小杂物间或者衣帽间
6、主卧内部,阳台与主卧的连接设计

设计理念:


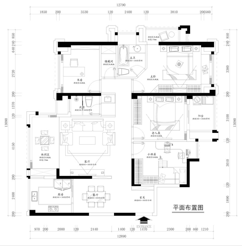
1、餐厅可以放在入户花园那(比较小) 可以做个小柜子
2、原餐厅可以做一个吧台(兼顾吃饭 上网 泡茶 等休闲功能)和一个L型柜子
3、最小那间小孩房 落地窗可以做个书桌
4、看样板房几个房间都是落地窗,主卧衣柜大点,主卧要有梳妆台
5、储物空间不大(怎么设计)

设计理念:

 

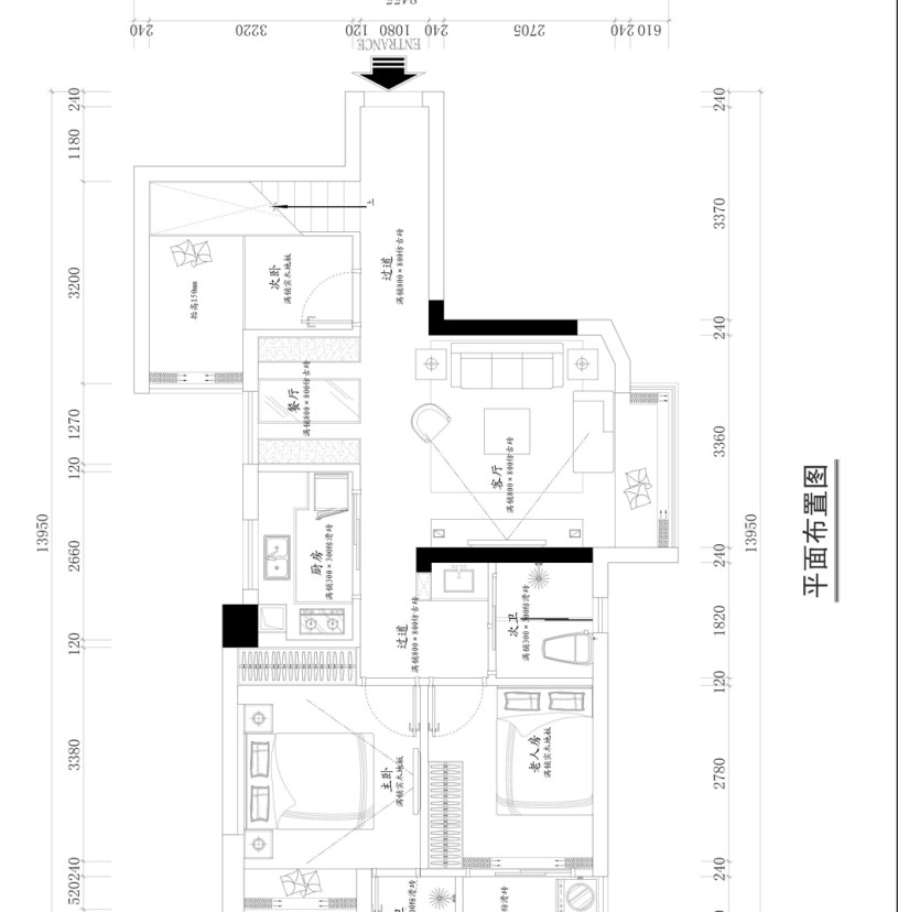
有楼梯的那个房间是阁楼??有4房1厅一卫一阳台
1.未来有一对老人,一对夫妻,现在有1个5个月大的宝宝 入住
2.阳台太大,能否如何划分到室内
3.需要2个卫生间
4.产权面积88 实际面积也差不多88
5.价格比较实惠的装修风格效果

  • 作品1

    作者: [宁啟权]

  • 作品2

    作者: [宁啟权]

  • 作品3

    作者: [宁啟权]

  • 作品4

    作者: [宁啟权]

  • 作品5

    作者: [宁啟权]

  • 作品6

    作者: [宁啟权]

  • 作品7

    作者:[宁啟权]

  • 作品8

    作者:[宁啟权]