福建(福州)如家装饰设计工程有限公司是一家以设计、施工、售后维护于一体的专业装饰工程公司。并取得由建设厅颁发的装饰装修设计与施工一体化二级资质企业。可承接单项合同额达1200万室内外装修工程。凭借精湛的技术和实力,丰富的设计经验、雄厚的资金进军福州装饰行业,并多次荣获【福州十大装饰装修企业】、【福建省客户满意服务装饰装修单位】、【福建省绿色装饰装修推荐企业】、【全国住宅装饰装修行业自律管理企业】等行业荣誉。2009年、2010年连续获得“福建省室内与环境设计大奖赛二等奖”等众多设计大奖。现设有一个总部(福州中央商业区五四路上),和省内多家分公司及遍布城区多个售后服务网点。 [查看详细]

户型设计师

真实姓名: 郑芬芳
固定电话: 15060040511
设计价格: 100以上
从业时间: 8年以上
设计擅长: 公寓 别墅 写字楼 会所 餐饮
设计风格: 中式 欧式 现代 简约
座 右 铭: 态度决定品质于设计

现任福州如家装饰公司设计师总监

最新获奖情况:福建省室内与环境设计大奖赛二等奖
查看作品>>

                                                                                                 更多>>

设计理念:


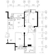
建筑面积:109.48 实际面积:90左右
喜欢的风格:简约时尚现代
1:卫2面积比卫1大,但是,我想打算把卫2作为套内卧室之用。卫1则用于公共,怎样设计才能使得卫1的空间面积更合理的使用。
2:客厅阳台是朝北的,沙发和电视的要怎么摆放比较合理美观。(本人纠结在电视背景墙是放在厨房那墙还是卧室的墙上)
3:卫1的门对着大门 要怎么设计?
4:卧室的卫生间 我想设计成移门,能否套在壁橱内做成隐蔽型的卫生间,要如何设计?
5:希望一点空间都不要浪费了。
6:装修费用预计多少米?


设计理念:

 

房子面积85平,实用只有69平,预算6万左右吧。


就我和父母住,我是女生出嫁后肯定就他们二老住呀,当然我还是会回来偶尔小住的,喜欢现代简约清楚一些的风格。


1.房子面积小希望尽量做出空间感,不要太挤的感觉


2.杂物多希望能装东西的地方多,但又不要太挤


3.总之麻雀虽小希望五脏俱全吧。

 

设计理念:

 

网上找的,主卧里的卫生间,就这么大就行了,装个淋雨喷头,装个最小的洗手盆,最好还有一个吊柜和一些挂钩什么的。


房子明年才交房,面积98.2,九户三梯,实际面积大约85平方。


预算8万,要求大方简约,打算五口人住。


1、两卫,橱子多做,尽量利用空间;
2、不需要厅大,能摆上双人沙发和贵妃椅就好了 有茶几泡茶;
3、柜子多做,不要吊顶,讲求收纳功能;
4、不改变格局,最好能标一下每个房间有多少平方。

  • 作品1

    作者: [郑芬芳]

  • 作品2

    作者: [郑芬芳]

  • 作品3

    作者: [郑芬芳]

  • 作品4

    作者: [郑芬芳]

  • 作品5

    作者: [郑芬芳]

  • 作品6

    作者: [郑芬芳]

  • 作品7

    作者:[郑芬芳]

  • 作品8

    作者:[郑芬芳]